Loft Conversion in Northern Quarter

Apartment 1 Marlee court - 62 Tib Street, Nothern Quarter, Manchester, United Kingdom (269 m from centre)
Search
Destination/Property name
Check-in:
Check-out:
Adults/Children:
Adults 2, Children 0
Room 1:
* Children from 2 to 12 years old
We Price Match
No commission
Instant reservation confirmation
Free Wi-Fi
269 m from centre
Experience the best of Manchester at this stylish loft conversion in the heart of the city! Just a short stroll from Piccadilly Railway Station and Canal Street, you'll be within easy reach of top attractions like Albert Square, Manchester Central Library, and Royal Exchange Theatre. The spacious 2-bedroom apartment boasts a flat-screen TV with streaming services, a fully equipped kitchen with dishwasher and oven, washing machine, and a modern bathroom with walk-in shower. Enjoy the convenience of a private entrance for added privacy. Popular spots nearby include Manchester Arena, Manchester Art Gallery, and Chetham's Library. And when you're ready to explore further afield, Manchester Airport is just 15 km away.
Please select check-in/check-out dates to see rates and availability
Room type Guests
x 8
Apartment
Room description
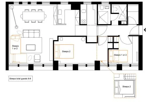
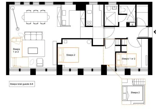
This spacious apartment consists of 1 living room, 2 separate bedrooms and 2 bathrooms with a walk-in shower and free toiletries. Meals can be prepared in the well-fitted kitchen, which comes with a stovetop, a refrigerator, a dishwasher and kitchenware. The apartment provides a flat-screen TV with streaming services, a washing machine, a private entrance, a tea and coffee maker as well as city views. The unit offers 4 beds.
Children and extra beds
Children: no more than 7
Facility Tea/Coffee Maker, Shower, TV, Hairdryer, Iron, Radio, Refrigerator, Desk, Ironing Facilities, Seating Area, Free toiletries, Fan, Toilet, Microwave, Dishwasher, Washing Machine, Private bathroom, Heating, Kitchen, Bath or Shower, Flat-screen TV, Private entrance, Sofa, Hardwood or parquet floors, Dining area, Electric kettle, Kitchenware, Wardrobe or closet, Oven, Stovetop, Toaster, Cleaning products, Coffee machine, City view, Towels, Linen, Dining table, Upper floors accessible by stairs only, Semi-detached, Private flat in building, Clothes rack, Fold-up bed, Drying rack for clothing, Toilet paper, Board games/puzzles, Sofa bed, Walk in shower, Chocolate or cookies, Trash cans, Wine glasses, Children's cots/cribs, Shampoo, Body soap, Socket near the bed, Non-feather pillow, Streaming service (such as Netflix), Smoke alarm, Fire extinguisher, Key access

Area Info - Loft Conversion in Northern Quarter

Closest airports
  • Leeds Bradford International Airport 70 km
  • Manchester Airport 15 km
  • Liverpool John Lennon Airport 54 km
Restaurants & cafes
  • Mint Lounge 50 m
  • The Northern 10 m
  • Hemp 50 m
  • Sugar Junction 3 m
  • Rustica 10 m
  • Fresh Bites 50 m
What's nearby
  • Greater Manchester Police Museum 250 m
  • Piccadilly Gardens 400 m
  • National Football Museum 650 m
  • Cenotaph 800 m
  • St Michaels Flags 750 m
  • St. Peter's Square 850 m
  • Albert Square 1 km
  • Blackfriars Bridge 1 km
  • People's History Museum 1.5 km
  • Roman Fort Of Mamucium 1.9 km
Top attractions
  • Museum of Science & Industry 2 km
  • Manchester Museum 2.3 km
  • Elizabeth Gaskell's House 2.9 km
  • Victoria Baths 3.6 km
  • Clayton Hall Museum 4.4 km
  • Heaton Park 7 km
  • Fletcher Moss Botanical Gardens 10 km
Natural Beauty
  • Gorton Upper Reservoir 7 km
Public transport
  • Riverside Park 9 km
  • The Carters Arms 10 km
  • Manchester Victoria Station 800 m
  • Piccadilly Railway Station 950 m
Ski lifts
  • Rossendale 1 28 km
  • Rossendale 2 28 km

Facilities - Loft Conversion in Northern Quarter

General WiFi available in all areas
Services Internet services, WiFi, Free WiFi
Miscellaneous Non-smoking rooms, Family rooms, Heating, Non-smoking throughout, Smoke alarms, Fire extinguishers

House Rules - Loft Conversion in Northern Quarter

Check-in 15:00
Check-out 11:00
Internet WiFi is available in all areas and is free of charge.
Parking No parking available.
Pets Pets are allowed on request. Charges may be applicable.
Children and extra bed policy Children of any age are allowed. Children up to and including 2 years old stay for free when using an available cot. You haven't added any extra beds. Any type of extra bed or child's cot/crib is upon request and needs to be confirmed by management.
Only cash
This property only accepts cash payments.

*The Fine Print

This property does not accommodate bachelor(ette) or similar parties. Please inform of your expected arrival time in advance. You can use the Special Requests box when booking, or contact the property directly using the contact details in your confirmation. Guests under the age of 18 can only check in with a parent or official guardian.

Reviews - Loft Conversion in Northern Quarter

100% verified reviews Real guests. Real stays. Real opinions.
9.1 Based on 41 review

Staff

9.7

Location

9.5

Cleanliness

9.4

9.1

Service

9.2

Price quality

8.9

Comfort

9.6

Frequently Asked Questions: Loft Conversion in Northern Quarter

How much does it cost to stay at apartment Loft Conversion in Northern Quarter?
The cost of living in apartment Loft Conversion in Northern Quarter depends on the date, rate, number of guests etc. Enter your dates to see prices.
What are the check-in and check-out times at apartment Loft Conversion in Northern Quarter?
Check-in at apartment Loft Conversion in Northern Quarter is possible from 15:00, check-out is until 11:00.
Does Loft Conversion in Northern Quarter have parking?
There is no parking available at Loft Conversion in Northern Quarter.
How far is the Loft Conversion in Northern Quarter from the nearest airport?
Loft Conversion in Northern Quarter is 15 km away from the nearest airport (Manchester Airport).
How to reserve a hotel?
Choose the dates of your trip
Fill out the simple reservation form
Instant reservation
Receive your booking confirmation by e-mail
Pay directly to the hotel