Windchasers super property with hot tub

10 Bath Road, Cowes, United Kingdom (150 m from centre)
Search
Destination/Property name
Check-in:
Check-out:
Adults/Children:
Adults 2, Children 0
Room 1:
* Children from 2 to 12 years old
We Price Match
No commission
Instant reservation confirmation
Free Wi-Fi
150 m from centre
Please select check-in/check-out dates to see rates and availability
Room type Guests
x 10
Vacation Home
Room description
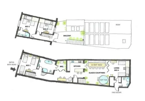
The hot tub is a top feature of this holiday home. Boasting a private entrance, this holiday home comes with 1 living room, 3 separate bedrooms and 3 bathrooms with a bath and a hairdryer. Guests can make meals in the kitchen that features a stovetop, a refrigerator, a dishwasher and kitchenware. This holiday home has a washing machine, a wardrobe, a TV with streaming services and a patio. The unit has 10 beds.
Children and extra beds
Children: no more than 5
Facility Bath, TV, Hairdryer, Hot Tub, Refrigerator, Ironing Facilities, Microwave, Dishwasher, Washing Machine, Patio, Private bathroom, Heating, Kitchen, Wireless Internet, Private entrance, Electric kettle, Kitchenware, Tumble dryer, Wardrobe or closet, Oven, Stovetop, Toaster, Towels, Linen, Dining table, Clothes rack, Streaming service (such as Netflix), Smoke alarm, Fire extinguisher

Facilities - Windchasers super property with hot tub

General Pets allowed, WiFi available in all areas
Services Internet services, WiFi, Free WiFi
Common areas Garden
Miscellaneous Non-smoking throughout, Smoke alarms

House Rules - Windchasers super property with hot tub

Check-in 16:00
Check-out 10:00

*The Fine Print

This property does not accommodate bachelor(ette) or similar parties.

Frequently Asked Questions: Windchasers super property with hot tub

How much does it cost to stay at apartment Windchasers super property with hot tub?
The cost of living in apartment Windchasers super property with hot tub depends on the date, rate, number of guests etc. Enter your dates to see prices.
What are the check-in and check-out times at apartment Windchasers super property with hot tub?
Check-in at apartment Windchasers super property with hot tub is possible from 16:00, check-out is until 10:00.
Does Windchasers super property with hot tub have parking?
There is no parking available at Windchasers super property with hot tub.
How to reserve a hotel?
Choose the dates of your trip
Fill out the simple reservation form
Instant reservation
Receive your booking confirmation by e-mail
Pay directly to the hotel