Beeches Farmhouse Country Cottages & Rooms

Holt Road, Bradford on Avon, United Kingdom (1.6 km from centre)
Search
Destination/Property name
Check-in:
Check-out:
Adults/Children:
Adults 2, Children 0
Room 1:
* Children from 2 to 12 years old
We Price Match
No commission
Instant reservation confirmation
Free Wi-Fi
Free parking
1.6 km from centre
Please select check-in/check-out dates to see rates and availability
Room type Guests
x 4
x 5
x 10
x 5
x 4
Premium Quadruple Room
Room description
The Milking Shed Ensuite Triple or Family Room is located in the detached conversion of the farm buildings, this spacious room has either a double bed or twin beds and a single bed. An extra bed can be provided, if requested at least 48 hours in advance. At least 48 hour notice must be given of a preferred bed set up. There is a shower over the bath. Dogs can be accommodated by prior arrangement. Ts&Cs and charges apply.
Children and extra beds
Children: no more than 3
Facility Tea/Coffee Maker, Shower, Bath, TV, Hairdryer, Radio, Refrigerator, Free toiletries, Toilet, Microwave, Patio, Private bathroom, Heating, Wireless Internet, Bath or Shower, Flat-screen TV, Private entrance, Hardwood or parquet floors, Electric kettle, Wardrobe or closet, Toaster, Cleaning products, Electric blankets, Towels, Linen, Outdoor furniture, Outdoor dining area, Entire unit located on ground floor, Toilet paper, Bottle of water, Chocolate or cookies, Trash cans, Wine glasses, Children's cots/cribs, Shampoo, Conditioner, Body soap, Shower cap, Inner courtyard view, Streaming service (such as Netflix), Smoke alarm, Key access
Superior Triple Room
Room description
The Old Dairy and The Cart House Ensuite Double or Twin rooms are located in the detached conversion of farm buildings, these rooms can be double or twin. At least 24-hour notice must be given of a preferred bed set up. There is space for an additional bed and, if required, an interconnecting door between the two Double or Twin Rooms with Patio. These must be requested at least 24 hours prior to arrival. There is a walk in shower. Dogs can be accommodated by prior arrangement.
Children and extra beds
Children: no more than 2
Facility Tea/Coffee Maker, Shower, TV, Hairdryer, Radio, Refrigerator, Free toiletries, Toilet, Microwave, Patio, Private bathroom, Heating, Wireless Internet, Bath or Shower, Interconnected room(s) available, Flat-screen TV, Private entrance, Hardwood or parquet floors, Electric kettle, Wardrobe or closet, Toaster, Cleaning products, Electric blankets, Towels, Linen, Outdoor furniture, Outdoor dining area, Entire unit located on ground floor, Toilet paper, Walk in shower, Shower chair, Bottle of water, Chocolate or cookies, Trash cans, Wine glasses, Children's cots/cribs, Shampoo, Conditioner, Body soap, Shower cap, Inner courtyard view, Streaming service (such as Netflix), Smoke alarm, Key access
Deluxe Triple Room
Room description
The Farmhouse Ensuite Double Room is located up a flight of stairs in the farmhouse. It has a double bed and an extra bed can be provided if requested at least 48 hours in advance. In the bathroom is a bath with a hand shower. Dogs cannot be accommodated in this room. For The Farmhouse Room check in is from 4pm to 9pm. Once you have checked in and collected the keys you can come and go as you please. The Farmhouse Ensuite Double Room IS NOT DOG FRIENDLY. The room is located up a flight of stairs in the farmhouse.
Children and extra beds
Children: no more than 2
Facility Tea/Coffee Maker, Bath, TV, Hairdryer, Radio, Refrigerator, Free toiletries, Toilet, Microwave, Private bathroom, Heating, Wireless Internet, Bath or Shower, Carpeted, Flat-screen TV, Private entrance, View, Electric kettle, Wardrobe or closet, Toaster, Garden view, Cleaning products, Electric blankets, Towels, Linen, Outdoor furniture, Outdoor dining area, Upper floors accessible by stairs only, Toilet paper, Bottle of water, Chocolate or cookies, Trash cans, Wine glasses, Children's cots/cribs, Shampoo, Conditioner, Body soap, Shower cap, Streaming service (such as Netflix), Smoke alarm, Key access
Superior Double Room
Room description
The Potato Shed Ensuite Double Room is located in the detached conversion of farm buildings, this room has a double bed. There is a shower over a bath. Dogs can be accommodated by prior arrangement. Ts & Cs and charges apply.
Children and extra beds
Children: no more than 1
Facility Tea/Coffee Maker, Shower, TV, Hairdryer, Radio, Refrigerator, Free toiletries, Toilet, Microwave, Patio, Private bathroom, Heating, Wireless Internet, Bath or Shower, Flat-screen TV, Private entrance, Hardwood or parquet floors, Electric kettle, Wardrobe or closet, Toaster, Cleaning products, Electric blankets, Towels, Linen, Outdoor furniture, Outdoor dining area, Entire unit located on ground floor, Toilet paper, Bottle of water, Chocolate or cookies, Trash cans, Wine glasses, Children's cots/cribs, Shampoo, Conditioner, Body soap, Shower cap, Inner courtyard view, Streaming service (such as Netflix), Smoke alarm, Key access
Cottage with Garden View
Room description
The detached and single-story Pig Wig Cottage has a double or twin bedroom in one room with double or twin beds in the other bedroom with space for another bed sleeping two to five people in all. At least 48 hours' notice must be given for specific bed set ups and if the pull-out bed for the fifth person is required. With no stairs the cottage is most suitable to young families and others who are ‘unsteady on their feet.’ As the rooms can have four or five single beds it is suitable for groups of friends. Should more bedrooms be required then we can offer our Ensuite Rooms infront of the cottages. Fully equipped kitchen Heating Log burner with logs Wi-fi Bathroom with a shower over a bath Bed linen and duvets Bath and hand towels Washing machine and drier Smart TV Carpeting in bedrooms and lounge. Patio with furniture BBQ Parking Not Dog friendly
Children and extra beds
Children: no more than 4
Facility Tea/Coffee Maker, Internet Facilities, Shower, Bath, TV, Hairdryer, Iron, Refrigerator, Desk, Ironing Facilities, Seating Area, Free toiletries, DVD Player, CD Player, Toilet, Microwave, Dishwasher, Washing Machine, Patio, Private bathroom, Heating, Kitchen, Wireless Internet, Carpeted, Fireplace, Private entrance, Sofa, View, Dining area, Electric kettle, Kitchenware, Tumble dryer, Wardrobe or closet, Oven, Stovetop, Toaster, Barbecue, Garden view, Cleaning products, Coffee machine, Towels, Linen, Dining table, Outdoor dining area, Entire unit located on ground floor, Toilet paper, Books, DVDs or music for children, Trash cans, Wine glasses, Fire extinguisher, Key access
Cottage
Room description
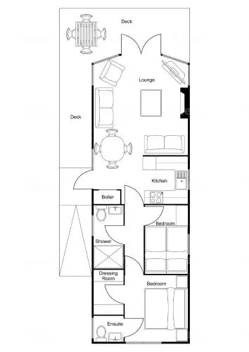
Both cottages can be interconnecting and sleep up to 10 people in all. The semi detached Cow Byre Cottages both have galleried double or twin-bedded bedrooms upstairs. Downstairs, Cow Byre 1 has a room with adult bunk beds and a single bed while Cow Byre 2 has a double or twin bedded room with a single bed. At least 48 hours should be given for specific bed set ups. Each cottage has a ground floor bathroom. Should more bedrooms be required then we can offer our rooms with attached bathroom most of which are infront of the cottages . Both cottages together are popular with well behaved hen groups and families meeting up. There is a charge if you would like the sofas moved into one cottage for a lounge and for the dining tables and chairs to be moved into the other. Notice is also required. Two fully equipped kitchens Heating Two log burners with logs Wi-fi Two bathrooms with a shower over a bath Bed linen and duvets Bath and hand towels Two Smart TVs Two courtyards with furniture Two BBQs Parking. Dog friendly. Ts & Cs and charges apply
Children and extra beds
Children: no more than 8
Facility Tea/Coffee Maker, Shower, Bath, TV, Hairdryer, Iron, Radio, Refrigerator, Ironing Facilities, Seating Area, Free toiletries, Toilet, Microwave, Dishwasher, Washing Machine, Patio, Private bathroom, Heating, Kitchen, Wireless Internet, Bath or Shower, Fireplace, Interconnected room(s) available, Flat-screen TV, Private entrance, Sofa, View, Hardwood or parquet floors, Dining area, Electric kettle, Kitchenware, Tumble dryer, Wardrobe or closet, Oven, Stovetop, Toaster, Barbecue, Cleaning products, Electric blankets, Coffee machine, Towels, Linen, Dining table, Outdoor furniture, Outdoor dining area, Entire unit located on ground floor, Upper floors accessible by stairs only, Toilet paper, Baby safety gates, Shower chair, Chocolate or cookies, Trash cans, Wine glasses, Children's cots/cribs, Shampoo, Conditioner, Body soap, Shower cap, Streaming service (such as Netflix), Smoke alarm, Fire extinguisher, Key access
Two-Bedroom Cottage
Room description
The semi-detached Cow Byre Cottages both have galleried double or twin-bedded bedrooms upstairs. Downstairs, Cow Byre 1 has a room with bunk beds and a single bed while Cow Byre 2 has a double or twin bedded room with a single bed. If you would prefer one cottage rather than the other then do check which is available before booking. Notice must be given if specific bed setups are required. Each cottage has a ground-floor bathroom with a shower over a bath.. Fully equipped kitchen Heating Log burner with logs Wi-fi Bathroom with a shower over a bath Bed linen and duvets Bath and hand towels Smart TV Courtyard with furniture BBQ Parking Dog friendly. Ts & Cs and charges apply
Children and extra beds
Children: no more than 4
Facility Tea/Coffee Maker, Shower, TV, Hairdryer, Iron, Radio, Refrigerator, Ironing Facilities, Seating Area, Free toiletries, Toilet, Microwave, Dishwasher, Washing Machine, Patio, Private bathroom, Heating, Kitchen, Wireless Internet, Bath or Shower, Fireplace, Flat-screen TV, Private entrance, Sofa, View, Hardwood or parquet floors, Dining area, Electric kettle, Kitchenware, Tumble dryer, Wardrobe or closet, Oven, Stovetop, Toaster, Barbecue, Cleaning products, Electric blankets, Coffee machine, Towels, Linen, Dining table, Outdoor furniture, Outdoor dining area, Entire unit located on ground floor, Upper floors accessible by stairs only, Toilet paper, Baby safety gates, Chocolate or cookies, Trash cans, Wine glasses, Children's cots/cribs, Shampoo, Conditioner, Body soap, Shower cap, Streaming service (such as Netflix), Smoke alarm, Fire extinguisher, Key access
Deluxe Apartment
Room description
Request Type : Room Description Room Type : Deluxe Apartment Room Id : 3606918 The Garden Lodge has a double bedded room and a room with two close together small single beds suitable for children. Fully equipped kitchen LPG radiators and 'fire' Lounge and dining area Wi-fi Bathroom with a shower cubicle Bed linen and duvets Bath and hand towels Smart TV Decking with furniture BBQ Parking in the car park No dogs are preferred if possible. Views over grassed fields. Check in is from 4pm to 7pm.
Children and extra beds
Children: no more than 2
Facility Tea/Coffee Maker, Shower, TV, Hairdryer, Iron, Radio, Refrigerator, Ironing Facilities, Seating Area, Free toiletries, Toilet, Microwave, Washing Machine, Patio, Private bathroom, Heating, Kitchen, Bath or Shower, Fireplace, Additional Toilet, Flat-screen TV, Private entrance, View, Dining area, Electric kettle, Kitchenware, Tumble dryer, Wardrobe or closet, Oven, Stovetop, Toaster, Barbecue, Cleaning products, Electric blankets, Coffee machine, Towels, Linen, Dining table, Outdoor furniture, Outdoor dining area, Clothes rack, Toilet paper, Chocolate or cookies, Trash cans, Wine glasses, Children's cots/cribs, Shampoo, Conditioner, Body soap, Shower cap, Streaming service (such as Netflix), Smoke alarm, Fire extinguisher, Key access

Area Info - Beeches Farmhouse Country Cottages & Rooms

Closest airports
  • Bristol Airport 46 km
  • Royal Naval Air Station Yeovilton 62 km
  • RAF Fairford 60 km
What's nearby
  • Pulteney Bridge 14 km
  • The Jane Austen Centre 14 km
  • Bath Assembly Rooms 14 km
  • Prior Park Landscape Gardens 11 km
  • Atworth Recreation Ground 6 km
  • Town Hall 5 km
  • Barton Farm Country Park 2.6 km
  • Trowbridge Park 5 km
  • American Museum & Gardens 9 km
  • Freshford Mill 5 km
  • Southwick Country Park 8 km
  • Avonvale RFC 9 km
Top attractions
  • The Circus Bath 14 km
  • Royal Crescent 14 km
  • Farleigh Hungerford Castle 6 km
  • Devizes Castle 19 km
  • Dundas Aqueduct 7 km
Restaurants & cafes
  • The Shambles Coffee Shop 1.8 km
  • The Stumble Inn 1.9 km
  • MR Salvats 2 km
  • The Orchid Cafe 600 m
  • Pizzeria Amici 1.7 km
  • Il Fiume 2.2 km
Public transport
  • Bradford-on-Avon 2.2 km
  • Trowbridge 5 km

Facilities - Beeches Farmhouse Country Cottages & Rooms

General Pets allowed, On-site parking, Free parking, Parking
Activities Table tennis, Cycling, Canoeing, Billiards, Tennis court
Services Internet services, WiFi, Free WiFi
Transport Electric vehicle charging station, Accessible parking
Common areas Games room
Entertainment and family services Children's playground
Miscellaneous Non-smoking rooms, Non-smoking throughout, CCTV outside property

House Rules - Beeches Farmhouse Country Cottages & Rooms

Check-in 16:00
Check-out 10:00
Internet WiFi is available in the hotel rooms and is free of charge.
Parking Free public parking is possible on site (reservation is not possible).
Pets Pets are allowed on request. No extra charges.
Children and extra bed policy Children of any age are allowed. Children up to and including 2 years old stay for £20 per person per stay when using an available cot. People 2 years old and over stay for £35 per person per night when using an available extra bed. Any type of extra bed or child's cot/crib is upon request and needs to be confirmed by management. Supplements are not calculated automatically in the total costs and will have to be paid for separately during your stay.
Cards accepted at this property

*The Fine Print

Please note that only well behaved dogs can be accepted at the property in certain rooms and cottages ( NOT THE FARMHOUSE ROOM OR PIGWIG COTTAGE OR THE GARDEN LODGE), and it must be arranged with the property prior to arrival. Guests must contact the property at least 48 hours prior to arrival for requested bed set ups (double or single or triple etc), extra beds or cots required during their stay.In the event of an early departure, the property will charge you the full amount for your stay. It's recommended to bring your own vehicle since this property is not serviced by public transportation. This property does not accommodate bachelor(ette) or similar parties. Please inform of your expected arrival time in advance. You can use the Special Requests box when booking, or contact the property directly using the contact details in your confirmation. Guests under the age of 18 can only check in with a parent or official guardian.

Reviews - Beeches Farmhouse Country Cottages & Rooms

100% verified reviews Real guests. Real stays. Real opinions.
8.7 Based on 208 reviews

Comfort

9.2

Service

8.8

Cleanliness

9.1

Price quality

8.8

Staff

9.1

Location

9

8.7

Frequently Asked Questions: Beeches Farmhouse Country Cottages & Rooms

How much does it cost to stay at farm stay Beeches Farmhouse Country Cottages & Rooms?
The cost of living in farm stay Beeches Farmhouse Country Cottages & Rooms depends on the date, rate, number of guests etc. Enter your dates to see prices.
What are the check-in and check-out times at farm stay Beeches Farmhouse Country Cottages & Rooms?
Check-in at farm stay Beeches Farmhouse Country Cottages & Rooms is possible from 16:00, check-out is until 10:00.
Does Beeches Farmhouse Country Cottages & Rooms have parking?
Beeches Farmhouse Country Cottages & Rooms has parking available for guests.
How far is the Beeches Farmhouse Country Cottages & Rooms from the nearest airport?
Beeches Farmhouse Country Cottages & Rooms is 46 km away from the nearest airport (Bristol Airport).
How to reserve a hotel?
Choose the dates of your trip
Fill out the simple reservation form
Instant reservation
Receive your booking confirmation by e-mail
Pay directly to the hotel